The AHSR-3 Shipping Container Ramp is designed primarily for bridging into a standard container from ground level. This product can also be used in conjunction for vehicle loading from a raised dock. The self-levelling lip allows for full load capacity when on slightly uneven ground.
Specifications:
Upgrade your forklift with a reliable solution that minimizes effort and optimizes performance! Whether for warehouses or industrial settings, the AHFE2 Series is your ultimate partner for heavy-duty jobs.
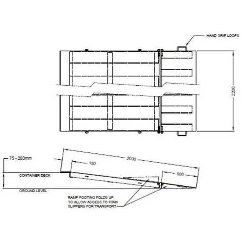
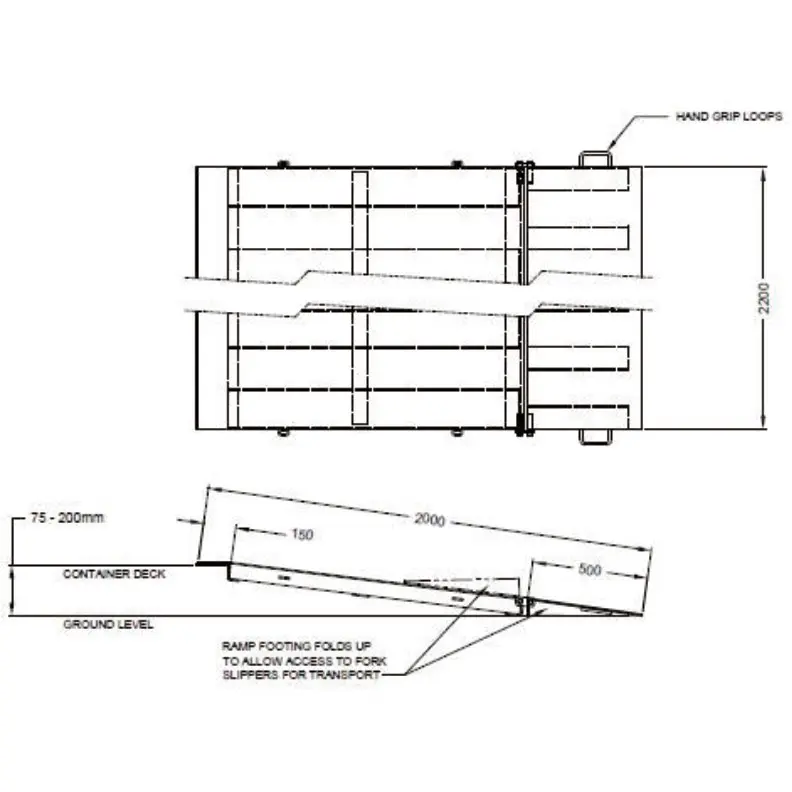
Say goodbye to loading and unloading challenges with the AHCRN Shipping Container Ramp, your ultimate solution for seamless transitions between ground level and standard containers. Engineered for versatility, this ramp isn’t just a favorite for container access; it’s also perfect for vehicle loading from raised docks.
The self-leveling lip ensures full load capacity, even on slightly uneven terrain, providing stability and safety where it matters most. Finished in "Safety Yellow" enamel paint, the ramp is highly visible, enhancing on-site safety and reducing potential risks. Built to handle the toughest demands, it’s available in two variations tailored to meet your specific needs:
AHCRN15: With a width of 1200 mm and length of 1380 mm, this ramp is ideal for human crossings, ensuring a secure and efficient transition. (Safe working load of 80.)
AHCRN65: Designed for trucks, this heavy-duty ramp measures 2200 mm in width and 2000 mm in length, with an impressive working load of 275.
Whether you're managing cargo or facilitating vehicle movement, the AHCRN Shipping Container Ramp combines durability, reliability, and unmatched convenience. Your operations just got safer and smoother.